Rue de Marbaix 9

Superficie terrain
15a70ca

Surface habitable
178 m2

Salle(s) de bain
1

Nbre de chambre(s)
3

Garage / Carport
1
Pour tout renseignement et visite, veuillez nous contacter au 0498/02.48.90
Adresse : Rue de Marbaix 9, 6534 Gozée
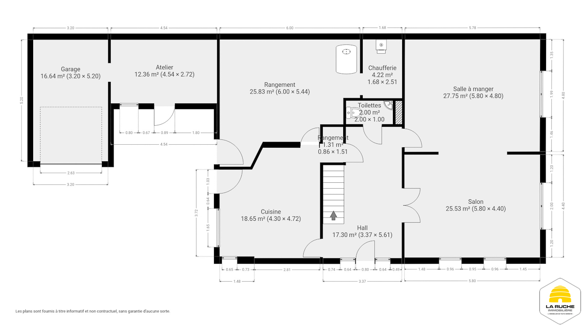
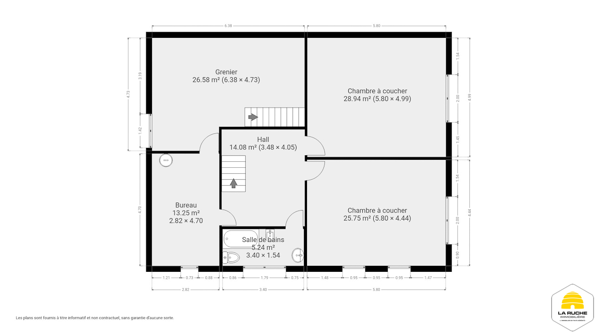
Maison à rénover de 178 m² nets habitables sur une parcelle de 15 ares 70 centiares, offrant un très beau potentiel. Elle se compose de 3 chambres, de vastes greniers aménageables, d’un grand jardin, d’une cave, et dispose d’un chauffage central au mazout (chaudière 2016). Électricité non conforme, citerne d’eau de pluie.
Composition :
Au rez-de-chaussée : Hall d’entrée, cuisine, salon, salle à manger, toilettes, buanderie, chaufferie, atelier, garage
Au 1er étage : Hall de nuit, 3 chambres, salle de bains, grand grenier aménageable
Au 2ème étage : 2 grands greniers aménageables
À l’extérieur : Beau grand jardin
Équipements :
Chauffage central par chaudière au mazout (2016), citerne d’eau de pluie, châssis bois simple vitrage, électricité non conforme, grand jardin.
R.C. : 823 €
PEB F n°20250920008077 – 443 kWh/m².an – 100.010 kWh/an
Conditions :
Faire offre à partir de : 270.000 €
Libre à l’acte
Télécharger les plans (PDF)
Télécharger le certificat PEB (PDF)
Documents disponibles :