rue Auguste Ligot 30

Superficie terrain
2a30ca

Surface habitable
178 m2

Salle(s) de bain
1

Nbre de chambre(s)
6
Pour tout renseignement et visite, veuillez contacter: Michel Di Girolamo - 0492 56 74 41
Adresse : Rue Auguste Ligot 30, 6041 Gosselies
Maison unifamiliale à rafraîchir de 178 m² nets habitables sur une parcelle de 2a30ca comprenant 6 chambres, grenier aménageable, caves, jardin orienté Est. Chauffage central au gaz de ville, panneaux photovoltaiques
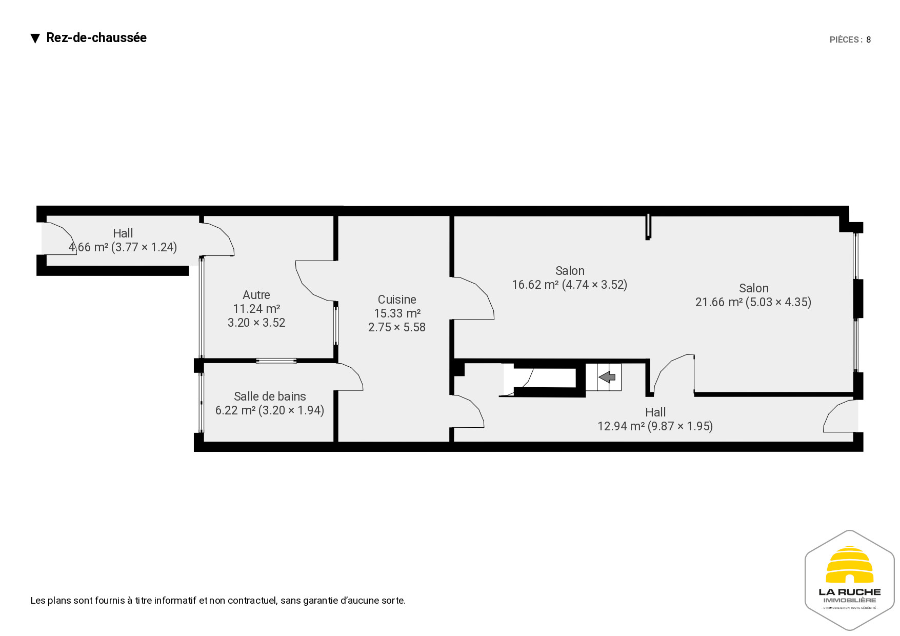
Au rez-de-chaussée : hall d’entrée (12,7 m²), salle-à-manger (16,27 m²), salon (22,62 m²), cuisine (15,58 m²/hauteur sous plafond 252 cm/plafond lambris bois/équipements : taques au gaz de ville, hotte, frigo, four), salle de bains (5,67 m² avec douche, WC, lavabo, boiler électrique Ariston), véranda/buanderie (11,34 m²) ;
Au 1er étage : palier (1,75 m²), hall de nuit (3,7 m²), WC (3,19 m²), 3 chambres (13,44 m²/11,24 m²/11,56 m²) ;
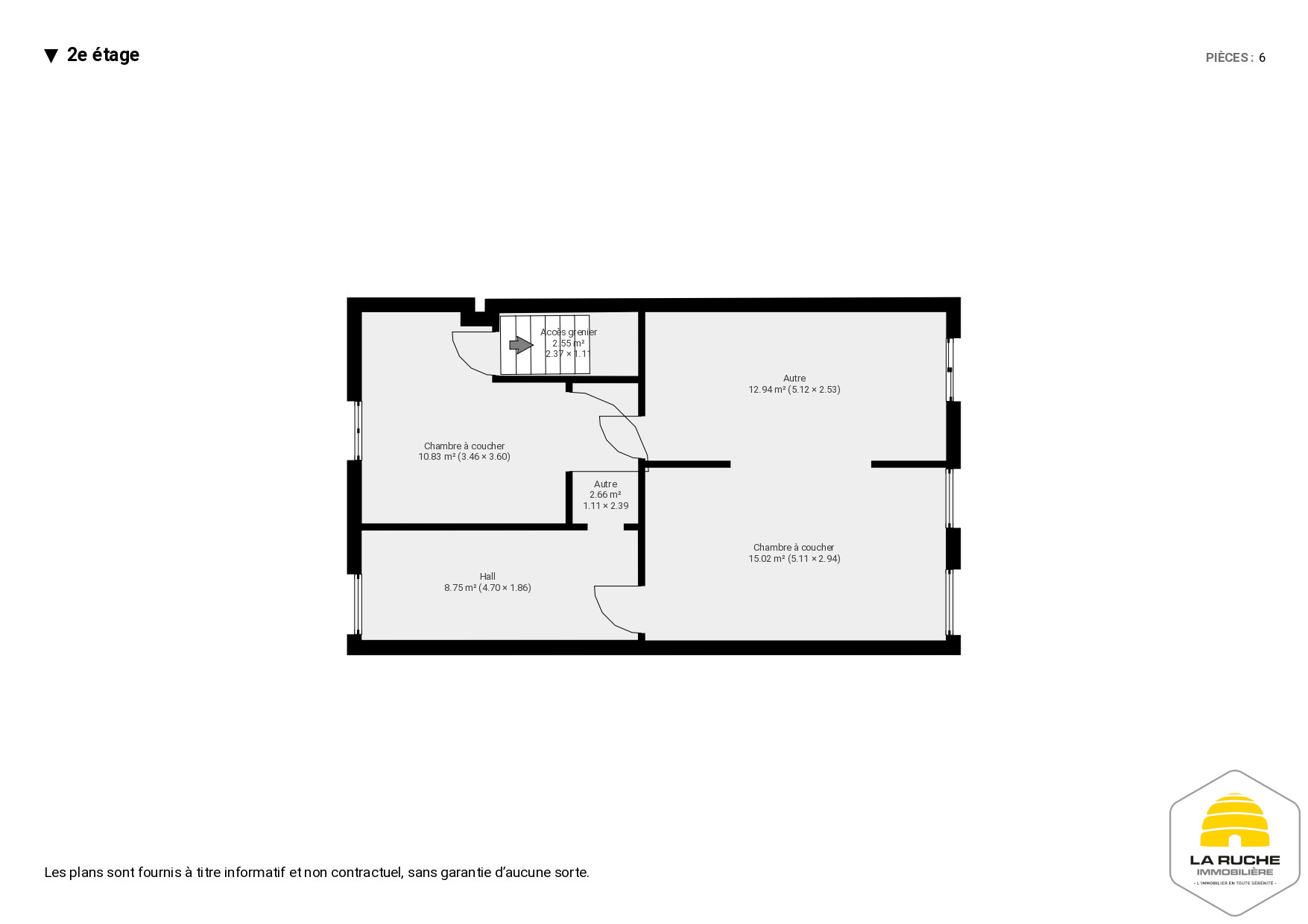
Au 2ème étage : palier (1,87 m²), hall de nuit (4,93 m²), 3 chambres (14,65 m²/13,04 m²/12,27 m² – deux chambres communicantes, une avec accès grenier) ;
Au 3ème étage : grenier (±30 m², toiture isolée PU 10 cm + laine minérale) ;
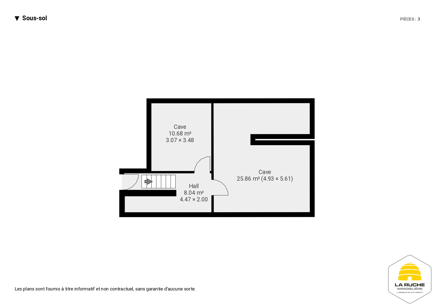
Sous-sol : deux caves (10,72 m² et 7,32 m²)
À l’extérieur : jardin clôturé orienté Est, remise de 6 m² à rénover.
Équipements : châssis PVC double vitrage, chauffage central gaz (chaudière à condensation de 2021), boiler électrique pour eau chaude sanitaire, panneaux photovoltaïques (±3,3 kWc), toiture isolée, électricité à remettre en conformité
R.C.: 386 €
Faire offre à partir de : 215.000 € – Prix d’achat immédiat : 235.000 €
PEB D n°20260331037239 – 287 kWh/m².an – 77.921 kWh/an
Documents disponibles :