Avenue Forestière 20

Superficie terrain
16a91ca

Surface habitable
200 m2

Salle(s) de bain
1

Nbre de chambre(s)
4

Garage / Carport
1
Pour tout renseignement et visite, veuillez nous contacter au 0498/02.48.90
Adresse : Avenue Forestière 20, 6001 Marcinelle
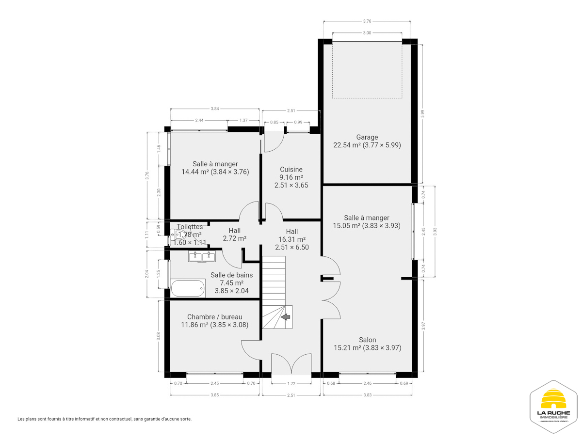
Villa de ±200 m² habitables construite en 1962, située dans le quartier très prisé Hublinbu à Marcinelle, à proximité des grands axes et dans un environnement boisé. Édifiée sur une première parcelle de 970 m², elle dispose également d’une deuxième parcelle attenante de 721 m² offrant la possibilité d’ériger une extension professionnelle ou familiale. Le tout représente une superficie totale de 1.691 m². Le bien comprend 4 chambres + une pièce aménageable en chambre , un garage et un beau jardin.
Composition :
Au rez-de-chaussée : hall, salon, salle à manger, cuisine, seconde salle à manger, bureau/chambre, salle de bains, WC séparé, garage
Au 1er étage : 4 chambres dont une pouvant être transformée en salle de bains/douche + une pièce facilement aménageable en grande chambre
Sous-sol : caves, chaufferie, buanderie
À l’extérieur : terrasse, jardin clôturé, environnement boisé
Équipements :
Châssis PVC double vitrage (2004) – volets sur certaines fenêtres – nouvelle chaudière mazout (2025) – production d’eau chaude sanitaire par boiler électrique – toiture en tuiles – installation électrique non conforme – raccordé aux égouts
R.C. : 1.488 €
PEB D – 262 kWh/m².an – consommation totale : 63.503 kWh/an
Faire offre à partir de : 350.000 €
Libre à l’acte
[Télécharger le plan (PDF)]
[Télécharger le certificat PEB (PDF)]